Чистые линии, смелые пропорции и воздух, наполняющий каждый из 184 квадратных метров. Дом «FREE STYLE» — это манифест современной жизни, где нет места лишнему, а есть место только для вас. Лаконичная геометрия, плоская крыша и панорамное остекление создают ощущение, что границы между внутренним пространством и природой окончательно стерты
FREE STYLE: Архитектура вашей свободы
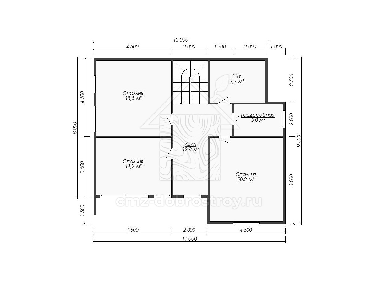
Четыре спальни, каждая — личный мини-мир с тщательно продуманной эргономикой и видами на сад. Пространство второго этажа с мастер-спальней становится убежищем для уединения, в то время как первый уровень с открытой гостиной-кухней и выходом в сад идеально подходит для жизни в движении, для встреч и тихих вечеров в кругу самых близких.
Почему «FREE STYLE» — это дыхание современности? Честная эстетика в прямых линиях Плоская крыша и минимализм как новая классика. Искусство пространства где 184 квадратных метра организованны по законам эргономики и света. Панорамные окна делают природу частью интерьера. Свобода самовыражения: - это нейтральная канва для вашего уникального стиля. Это ваша личная вселенная, где архитектура следует за вашим образом жизни, а не наоборот.
Для сезонного и круглогодичного проживания
Для приема друзей и родных с максимальным комфортом.
Идеальный проект для участков с живописным видом, который нельзя закрывать.
Эконом
Стандарт
Премиум
Идеально для летней дачи, гостевого домика, использования в теплый сезон.
Фундамент: Свайно-винтовой.
Каркас: Строганная доска камерной сушки, сечением 150 мм.
Утепление: Пол/перекрытия: 150 мм.
Стены: 150 мм.
Кровля/мансарда: 200 мм.
Остекление: Энергоэффективный однокамерный стеклопакет (в стандартной комплектации без панорамного остекления).
Отделка фасада: Имитация бруса или блок-хаус.
Внутренняя отделка: Вагонка или OSB-плиты под дальнейшую чистовую отделку силами заказчика.
Инженерные системы: Разводка под электричество, подготовка под санузел (установка канализационного выхода, водопроводных вводов).
Отопление: Электрические конвекторы или подготовка под печь-буржуйку/камин.
Дом защищен от осадков, утеплен, но для комфортной зимней эксплуатации потребуется дополнительная система отопления.
Идеально для основного дома для постоянного проживания 1-2 человек или семьи с ребенком.
Фундамент: Утепленная шведская плита (УШП) или свайно-ростверковый с утеплением.
Каркас: Усиленный каркас из доски камерной сушки, сечением 200 мм.
Утепление (по принципу «теплого контура»):
Пол/перекрытия: 200 мм.
Стены: 200 мм.
Остекление: Двухкамерные энергоэффективные стеклопакеты с аргоном. Возможно панорамное остекление.
Отделка фасада: Вентилируемый фасад с фиброцементными панелями, планкеном или сайдингом под штукатурку.
Внутренняя отделка: «Под ключ»: гипсокартон с покраской/шпаклевкой, поклейка обоев, укладка ламината/линолеума.
Отопление: Система водяного или электрического теплого пола.
Вентиляция: Приточно-вытяжная вентиляция с рекуперацией тепла (рекомендуется).
Санузел полностью готов к использованию (установлена сантехника).
Кровля: Плоская битумная (ПВХ) мембрана или металлочерепица с скрытым креплением.
Дом готов к заселению и эксплуатации в любое время года. Соответствует современным стандартам энергоэффективности.
Идеально для создания дома мечты с уникальными материалами и максимальным комфортом.
Фундамент: УШП с интегрированной системой отопления и готовыми коммуникациями.
Каркас и утепление: Усиленный каркас. Возможно использование альтернативных утеплителей (эковата, PIR-плиты).
Остекление: Большеформатные панорамные окна с двухкамерными стеклопакетами, возможно остекление в пол.
Отделка фасада: Высококачественный планкен, композитные панели, штукатурка по системе утепления.
Внутренняя отделка: Дизайнерский ремонт по вашему проекту: натуральная доска на пол, декоративная штукатурка, каменная кладка, индивидуальная мебель.
Умный дом: Система управления климатом, освещением, безопасностью.
Отопление: Современная система на основе теплового насоса «воздух-вода».
Вентиляция: Центральная система вентиляции с рекуперацией и увлажнением воздуха.
Дополнительно: Установка камина, система резервного питания, автоматизированные системы (жалюзи, освещение террасы).
Полная кастомизация под высокие требования к дизайну, комфорту и технологичности.
Новым клиентам мы дарим
скидку 50% на монтаж септика!
50%
Не будет ли холодно зимой с такой крышей и большими окнами?
Абсолютно нет! Мы используем усиленное каркасное утепление (до 250 мм в кровле) и рекомендуем двухкамерные энергоэффективные стеклопакеты. Такой дом даже теплее многих каменных, а расходы на отопление минимальны.
Второй свет — это же неэкономно по теплу?
Это миф. Современные системы отопления (теплый пол, рекуперация воздуха) эффективно справляются с обогревом всего объема. Теплый воздух поднимается вверх и равномерно прогревает мансардный этаж, создавая идеальный микроклимат.
Хватит ли места для семьи?
Это проект для 2-3 человек. Две отдельные спальни на мансарде обеспечивают уединение, а просторная гостиная с террасой — место для общих сборов. Это умная планировка без коридоров, где каждый сантиметр работает на вас.
Чем плоская крыша лучше двускатной?
Она дешевле в монтаже, современнее выглядит и на нее легко установить любое оборудование (например, спутниковую антенну или солнечные батареи). Правильно обустроенная плоская крыша с внутренним водостоком абсолютно надежна.
Центр Малоэтажного Зодчества
© 2012 - 2026 Все права защищены